Zz11 k
158 m²
Проект двухэтажного дома на фасаде с клинкерным кирпичом
Ostatnia sztuka w świetnej cenie!
Варианты: 1
Комментарии: 0
Срок готовности:
30 рабочих дней
АРХИТЕКТУРНО-СТРОИТЕЛЬНЫЙ РАЗДЕЛ
ЛИНЕЙНЫЕ РАЗМЕРЫ
рекомендуемые размеры участка
рекомендуемые размеры участка - минимальные размеры, которые должен иметь земельный участок, чтобы дом мог быть поставлен в соответствии с правилами
ширина
21,95 m
длина
21,25 m
Размеры фасада
Размеры фасада - габариты фасада здания, включая фундамент, исключая поверхности окон и дверей
13,95 m
Линейные размеры помещений PDF
площадь дома/общая площадь
площадь дома: площадь всех помещений здания за исключением чердака, измеряется на уровне пола без учета штукатурки и внутренней отделки стен.
общая площадь: площадь дома с добавлением площади балконов и террас, рассчитанных с понижающим коэффициентом 0,3 (коэффициент, который приводит площадь балкона, террасы или лоджии, к площади полноценного помещения дома).
158,1
/ 163,9
m²
площадь застройки
площадь застройки: это площадь по внешнему обводу здания на уровне цоколя, включая выступающие части: входные площадки и ступени, веранды, террасы, приямки, входы в подвал, автомобильные пандусы, наружные лестницы. Площадь под зданием, расположенным на столбах, проезды под зданием, а также выступающие части здания, консольно выступающие за плоскость стены на высоте менее 4,5 м от поверхности чистого пола
170,0 m²
строительный объем
строительный объем: строительный объем надземной и подземной частей дома определяется в пределах ограничивающих поверхностей
768 m³
высота дома
высота дома - высота рассчитывается от поверхности чистого пола до коньковой балки
8,7 m
угол наклона кровли
угол наклона кровли
- угол наклона кровли по отношению к полу.
22°
площадь кровли
площадь кровли - общая площадь крыши за исключением дымоходов и вентканалов.
137 m²
Конструкция перекрытия над первым этажом
ленточный монолитный
Кровля
цементно-песчаная черепица/металлочерепица/керамическая черепица
технология
каменный
Тип перекрытия
монолитное
Zz11 k представляет собой проект двухэтажного дома на фасаде с клинкерным кирпичом.
Чем привлекателен проект Zz11 k:
- На первом этаже есть дополнительная спальня и ванная комната. Это делает проект привлекательным для гостеприимных семей или семей с пожилыми родственниками.
- Для хозяек преимуществом при выборе проекта стане наличие кладовой возле удобной и функциональной кухни.
- Из гаража предусмотрен прямой доступ в просторную прихожую.
- Для семей с маленькими детьми или родственниками пожилого возраста проект будет удобен за счет наличия дополнительной спальни на первом этаже, рядом с которой спроектирована ванная комната.
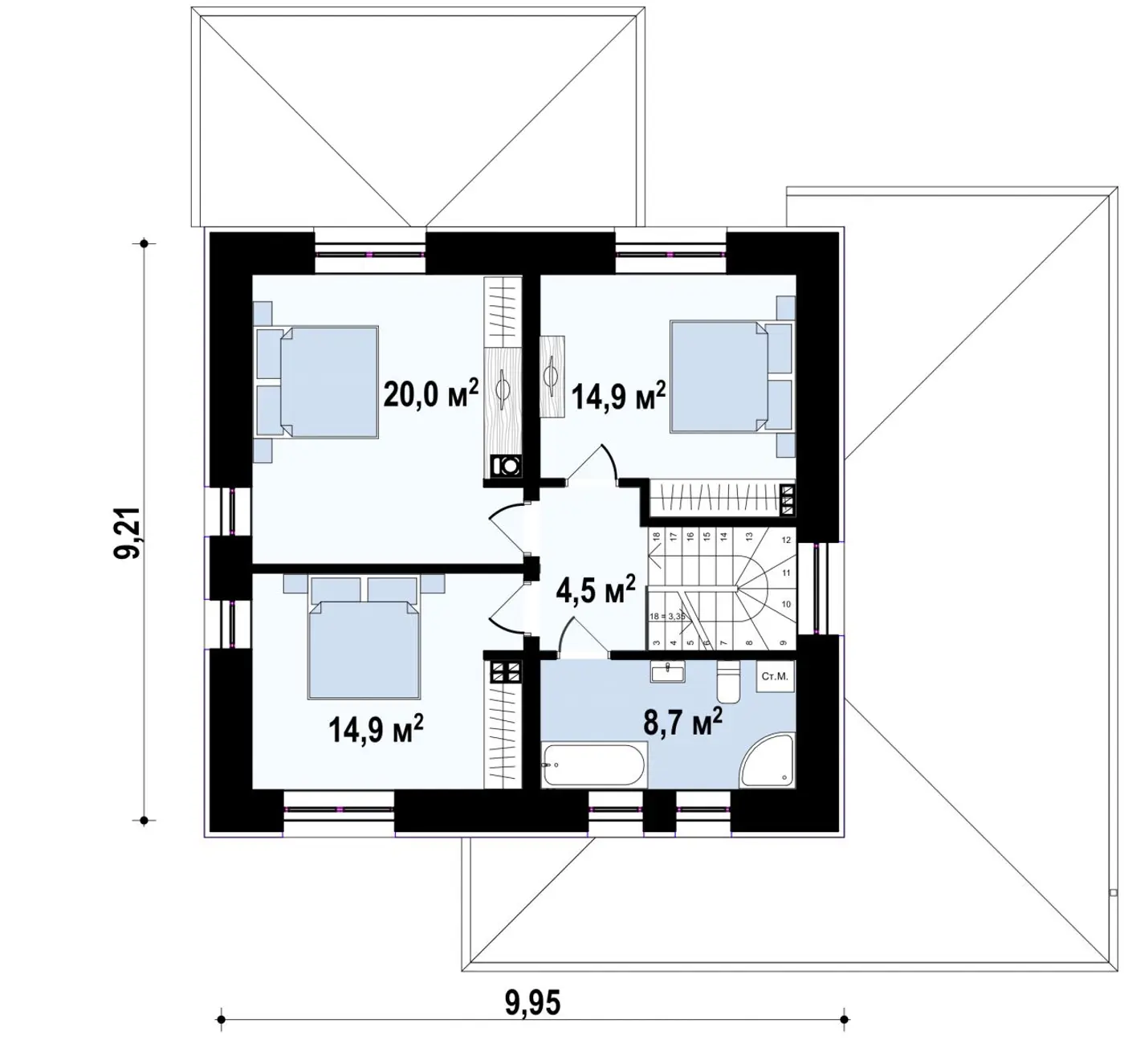
- Три просторных и светлых комнаты для сна и отдыха спроектированы на втором этаже. Также здесь имеется общая ванная комната.
- Из гостиной есть выход на террасу, которая удобна отдыха и приема гостей в хорошую погоду.
Дом, возведенный по проекту Zz11 k, - хорошее решение для семей с 2-3 детьми. Интерьер дома светлый и просторный, а внешний облик уникален и привлекателен за счет отделки кирпичом.
Дополнительная информация о проекте и его приобретении
Все материалы, которые размещены на сайте нашей компании охраняются авторским правом. Использование любой информации сайта (копирование, пересылка, воспроизведение, публикация в любом виде, др.) может осуществляться только при наличии разрешения компании Z500 в письменном виде. Это касается любой видео, графической, текстовой, числовой инфрмации, файлов для скачивания. Информация сайта может использоваться только в некоммерческих целях с указанием ссылки на наше архитектурное бюро.
Zz11 k
158 m²
каменный
АДАПТАЦИЯ ФУНДАМЕНТА
Благодаря адаптация фундамента к условиям вашего участка вы получите:
- гарантию надежности и долговечности вашего дома;
- экономию на закладке фундамента более выгодного, чем в типовом проекте (в определенных случаях, которые зависят от особенностей грунтов на вашем участке);
- бесплатную оценку изменений;
- выбор типа фундамента из нескольких предложенных вариантов (если условия участка позволяют реализовать разные типы фундамента).
Похожие проекты
Варианты
Мы делаем все возможное для оказания услуг наивысшего уровня.
Если вы заметили ошибку в функционировании сервиса или неточности в опубликованных материалах (несмотря на то, что это не является основанием для претензий к z500) обязательно сообщите свои замечания или пожелания поскольку мы постоянно совершенствуем продукты, сервис и услуги
Комментарии