Zb12
167 m²
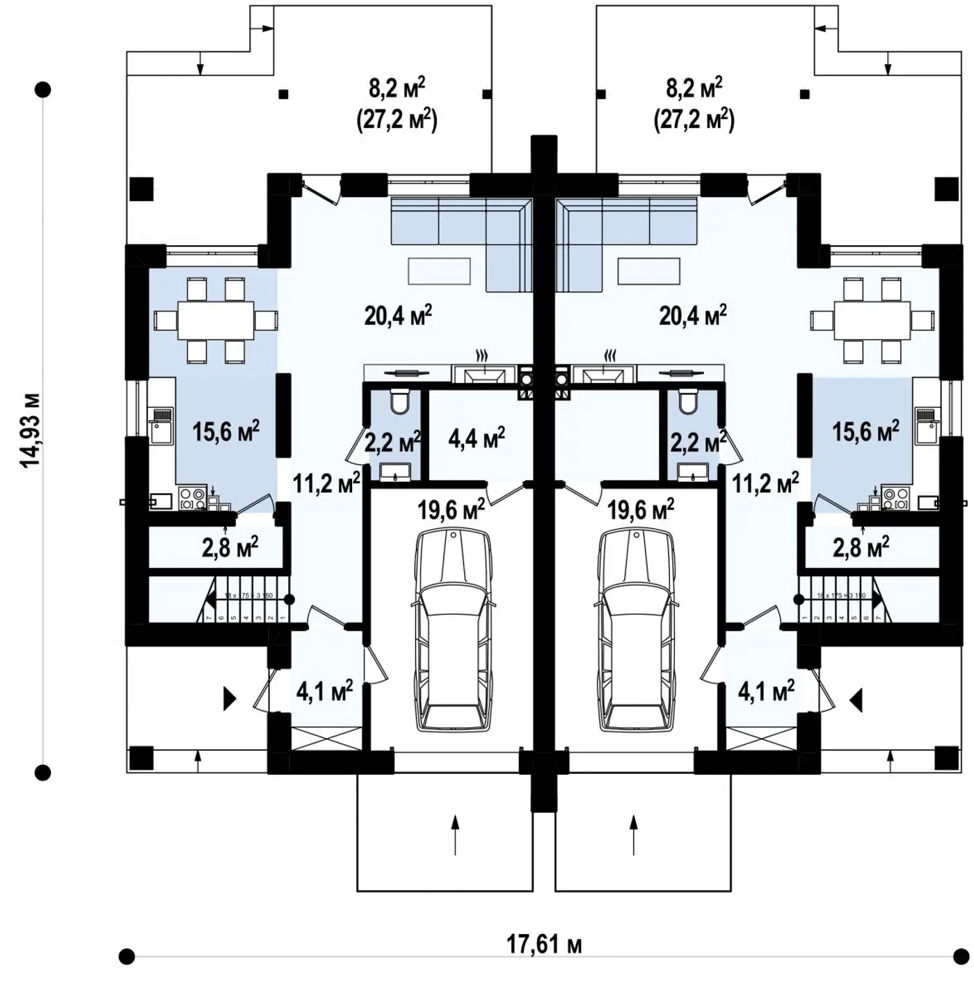
Дома близнецы элегантного дизайна со встроенным гаражом.
Ostatnia sztuka w świetnej cenie!
Варианты: 0
Комментарии: 0
Срок готовности:
30 рабочих дней
АРХИТЕКТУРНО-СТРОИТЕЛЬНЫЙ РАЗДЕЛ
ЛИНЕЙНЫЕ РАЗМЕРЫ
рекомендуемые размеры участка
рекомендуемые размеры участка - минимальные размеры, которые должен иметь земельный участок, чтобы дом мог быть поставлен в соответствии с правилами
ширина
23,61 m
длина
24,93 m
Размеры фасада
Размеры фасада - габариты фасада здания, включая фундамент, исключая поверхности окон и дверей
17,61 m
Линейные размеры помещений PDF
площадь дома/общая площадь
площадь дома: площадь всех помещений здания за исключением чердака, измеряется на уровне пола без учета штукатурки и внутренней отделки стен.
общая площадь: площадь дома с добавлением площади балконов и террас, рассчитанных с понижающим коэффициентом 0,3 (коэффициент, который приводит площадь балкона, террасы или лоджии, к площади полноценного помещения дома).
166,8
/ 175,0
m²
площадь застройки
площадь застройки: это площадь по внешнему обводу здания на уровне цоколя, включая выступающие части: входные площадки и ступени, веранды, террасы, приямки, входы в подвал, автомобильные пандусы, наружные лестницы. Площадь под зданием, расположенным на столбах, проезды под зданием, а также выступающие части здания, консольно выступающие за плоскость стены на высоте менее 4,5 м от поверхности чистого пола
136,4 m²
строительный объем
строительный объем: строительный объем надземной и подземной частей дома определяется в пределах ограничивающих поверхностей
970 m³
высота дома
высота дома - высота рассчитывается от поверхности чистого пола до коньковой балки
9,5 m
угол наклона кровли
угол наклона кровли
- угол наклона кровли по отношению к полу.
38° / 5°
площадь кровли
площадь кровли - общая площадь крыши за исключением дымоходов и вентканалов.
172,7 m²
Конструкция перекрытия над первым этажом
ленточный монолитный
Кровля
цементно-песчаная черепица/металлочерепица/керамическая черепица
технология
каменный
Тип перекрытия
монолитное
Дополнительная информация о проекте и его приобретении
Все материалы, которые размещены на сайте нашей компании охраняются авторским правом. Использование любой информации сайта (копирование, пересылка, воспроизведение, публикация в любом виде, др.) может осуществляться только при наличии разрешения компании Z500 в письменном виде. Это касается любой видео, графической, текстовой, числовой инфрмации, файлов для скачивания. Информация сайта может использоваться только в некоммерческих целях с указанием ссылки на наше архитектурное бюро.
Zb12
167 m²
каменный
АДАПТАЦИЯ ФУНДАМЕНТА
Благодаря адаптация фундамента к условиям вашего участка вы получите:
- гарантию надежности и долговечности вашего дома;
- экономию на закладке фундамента более выгодного, чем в типовом проекте (в определенных случаях, которые зависят от особенностей грунтов на вашем участке);
- бесплатную оценку изменений;
- выбор типа фундамента из нескольких предложенных вариантов (если условия участка позволяют реализовать разные типы фундамента).
Похожие проекты
Мы делаем все возможное для оказания услуг наивысшего уровня.
Если вы заметили ошибку в функционировании сервиса или неточности в опубликованных материалах (несмотря на то, что это не является основанием для претензий к z500) обязательно сообщите свои замечания или пожелания поскольку мы постоянно совершенствуем продукты, сервис и услуги
Комментарии